Dokument

Metaandmed

Viit:1.11-9/215-1
Registreerimise kpv:17.06.2013
Dokumendi liik:Leping
Pealkiri:Leping

Funktsioon:1.11 Logistika
Sari:1.11-9 Majanduslepingud
Toimik:1.11-9/2013

Juurdepääsupiirang:Avalik

Lepingu teised osapooled: Riigi Kinnisvara AS, Siseministeeriumi infotehnoloogia- ja arenduskeskus
Lõppemise kuupäev: 02.01.2014

Failid

Nimetus
130701_YLEP_Endla13_PPA_SMIT_Ü4781)12.ddoc
Lisa 2_Poolte kohustused_Endla13.xls
Lisa 3_Uur ja korvalteenuste tasud_Endla13.xls
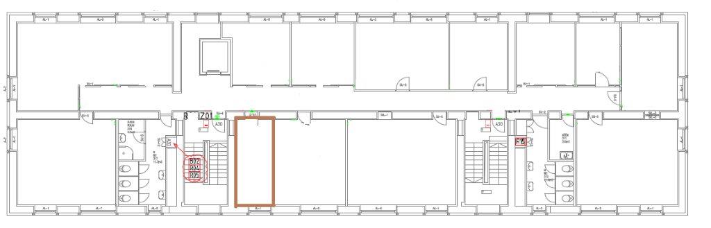
Lisa1_3_korruse_plaan.jpg
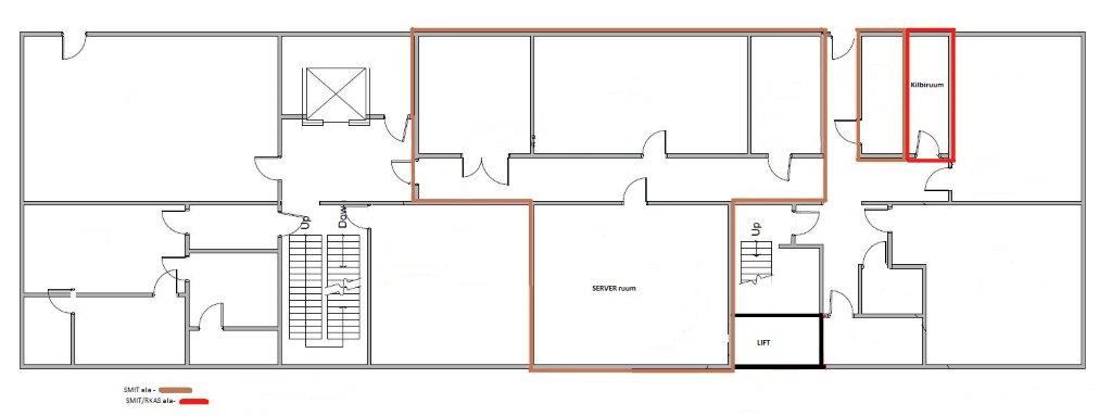
Lisa1_keldrikorruse_plaan.jpg
YLEP_Endla 13_PPA_muudatus 1.pdf
D0 Endla 13 AKT 2,13.02.2014.ddoc
Valduse_yleandmise_akt_Endla 13.docx

Seosed

LiikViitPealkiriSeos
Leping1.11-9/3-1Kinnisvara üürileping (Endla 13, Tallinn)tavaline
Leping1.11-9/3-1Kinnisvara üürileping (Endla 13, Tallinn)tavaline